Hintergrundbild_Patschaer.png
Hof_25_2_2011.jpg
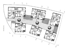
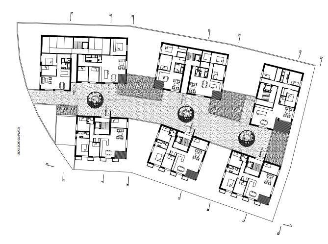
Das MFH-Gesamtprojekt beinhaltet die Gebäude A-F, sowie die dazu gehörenden Keller und Tiefgaragenparkplätze im Unterflurbereich.
Auf einer Fläche von ca. 3'500 m2 sieht das Konzept vor, 24 Miet- und 8 Eigentumswohnungen und rund 100 Tiefgaragenparkplätzen zu erstellen.
Die motorisierte Erschliessung erfolgt über die mit Liften eingebundene Tiefgarage. Über das Terrain sind Fusswege geplant. Die vordere und hintere Häuserzeile bilden einen Innenhof und sind gegen Aussen von Wiesland umgeben.
Das Projekt ist aufgeteilt auf die Bauherren Arthur Hermann (Haus C, D), und Heinz-Urs Kunz (Haus A, B, E, F).
Um ein möglichst homogenes Gesamtbild zu erhalten, wird das Projekt bautechnisch gemeinsam ausgeführt.
 

Auszug Projektstudie

  • Arealplan Baufenster
  • Machbarkeitstudie Tiefgarage
  • Modellansicht Richtung St. Luzisteig
  • Modellansicht Vogelperspektive Richtung Nord
  • Blick Richtung Pizol
  • Blick Richtung Sargans
  • Blick Richtung Dorf
  • Blick Richtung Fläscherberg